Hermann-Hesse-Straße, Berlin

….

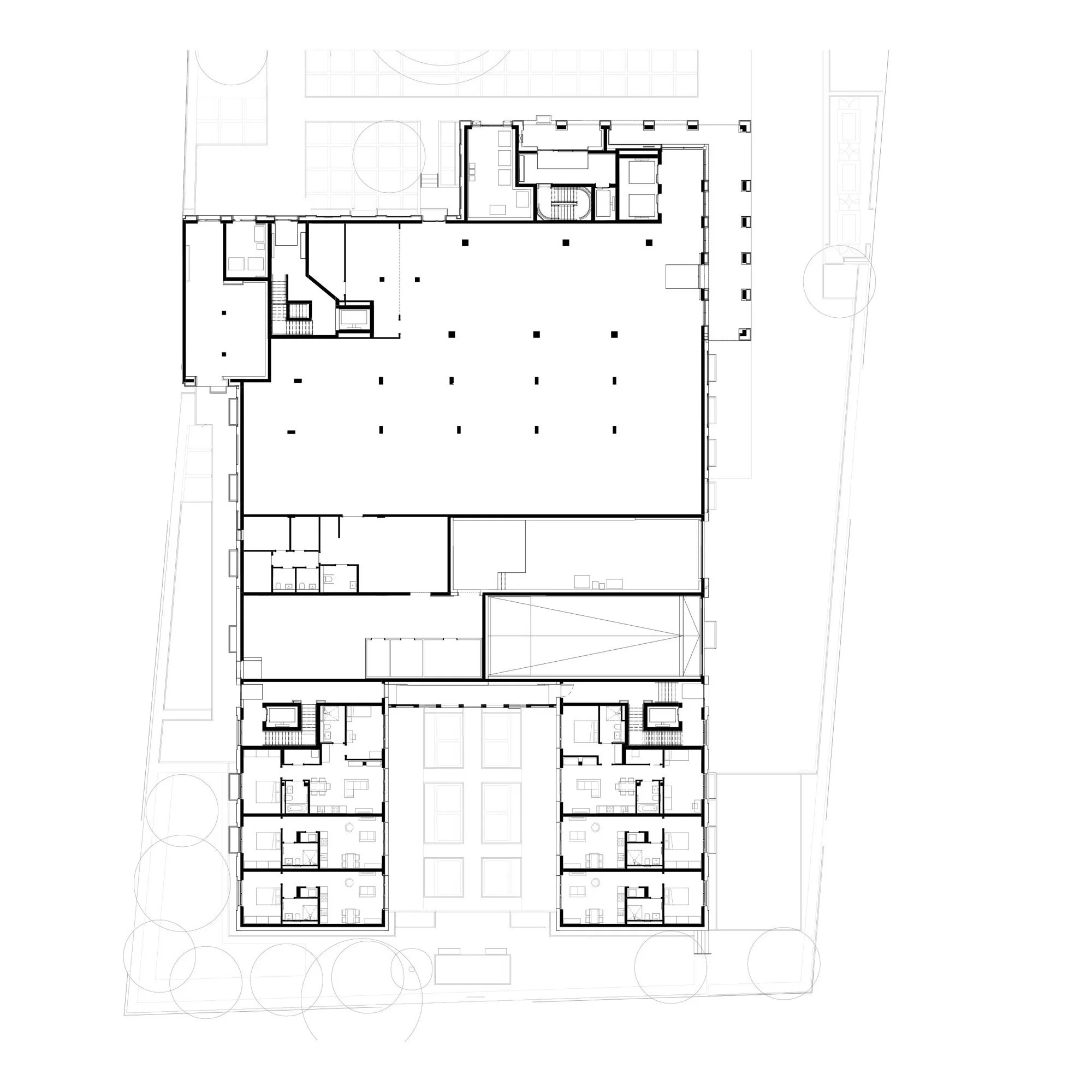
This project, for Trei Real Estate GmbH, consented in 2025 will replace an existing at grade supermarket and car park with 61 residential apartments and a 1,200m2 new store on Hermann-Hesse-Straße in the district of Pankow.

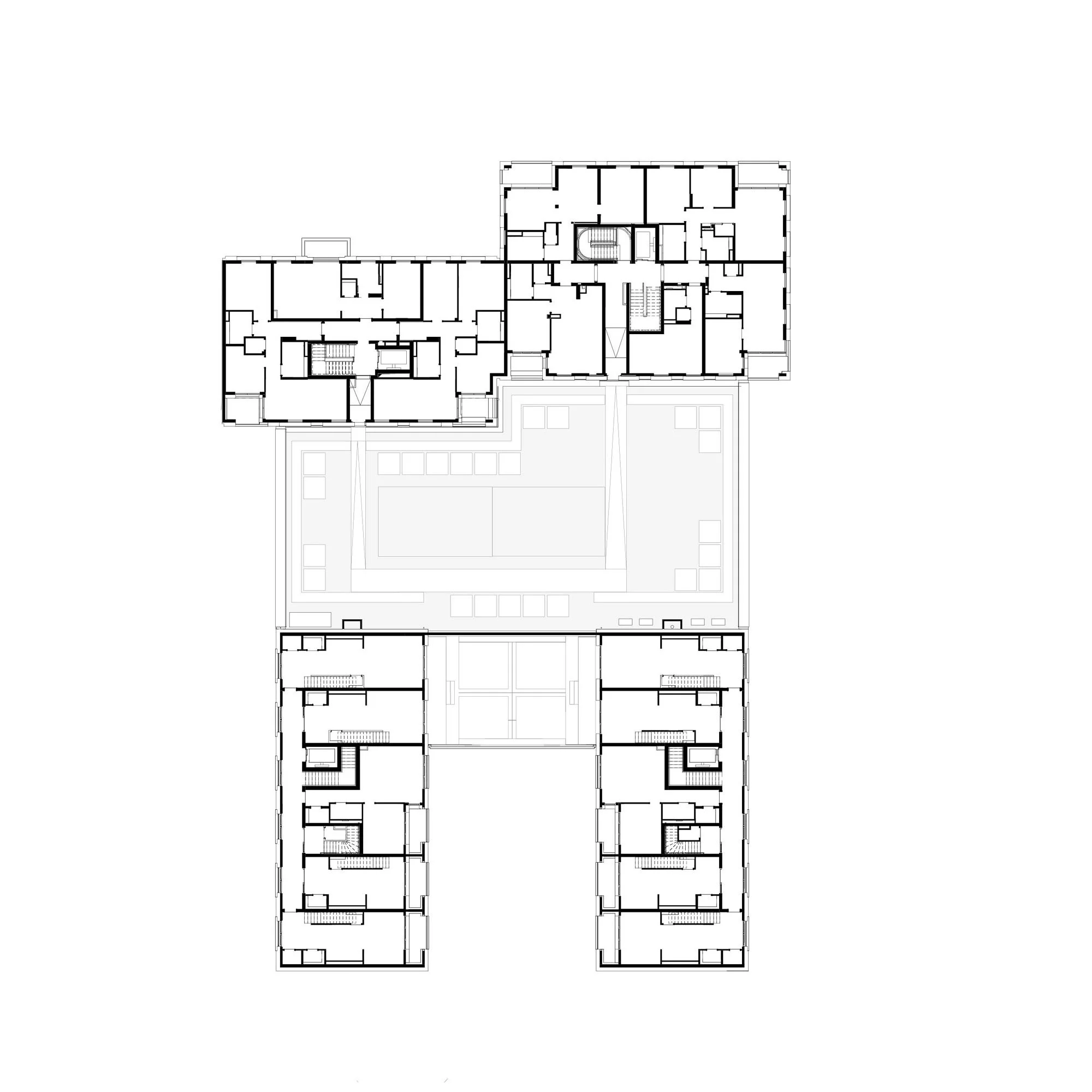
The proposals are comprised of four buildings and three primary landscaped spaces that respond to the typology, form and grain of the surrounding context. At the front of the site, set back from the road behind existing mature trees and a landscaped front garden, two residential buildings of six and seven-storeys set above the supermarket, follow the stepped building line and eaves of the neighbouring context to form a new frontage onto Hermann-Hesse-Straße. To their rear they are served by a podium garden and playspace followed by two three-storey linear buildings arranged either side of a courtyard garden that respond to the characteristic form and lower scale of rear buildings known as Güllweg.

The proposals also include a basement containing plant, storage and car parking for residents in addition to car parking for supermarket customers.

The buildings employ a restrained material palette throughout of a stone base, an off white render/putz and bronze coloured standing seam zinc roofs. The dorma roofs and the distinctive double pitched mansard roof of the main front building reflect the roof forms of the surrounding context.

The project pursues ambitious sustainability goals. Integrating Energy House 40 design principals, the aim is to achieve both DGNB Gold and QNG certification.

..

Bei dem Bauvorhaben Hermann-Hesse-Str. 19 handelt es sich um die Neuplanung eines Wohn- und Gewerbeensembles für die Trei Real Estate GmbH, genehmigt im Jahr 2025, im Berliner Stadtteil Niederschönhausen, Pankow in Berlin zentral.

Das Grundstück ist derzeit mit einem eingeschossigen Verbrauchermarkt und Stellplätzen bebaut. Die Neuplanung ersetzt diese Struktur durch einen neuen Supermarkt mit 1.200 m² Verkaufsfläche und 61 Wohnungen. Die Wohnnutzung verteilt sich auf vier Baukörper, die über ein Sockelgeschoss mit Gewerbenutzung verbunden sind. Zwei sechs- und siebengeschossige Vorderhäuser, von der Straße zurückgesetzt hinter bestehenden Bäumen und einem begrünten Vorgarten, folgen der Bauflucht und Traufhöhe der Nachbarbebauung und bilden eine neue Straßenkante an der Hermann-Hesse-Straße. Rückwärtig schließen ein Podiumgarten und Spielflächen an, gefolgt von zwei dreigeschossigen Riegelbauten, die beidseitig eines Hofgartens angeordnet sind und auf die Bebauung des Güllwegs reagieren.

Ergänzend ist ein Untergeschoss vorgesehen, das Technik-, Lager- und Stellplatzflächen für Bewohner sowie Kunden des Supermarkts aufnimmt.

Die Gebäude weisen eine zurückhaltende Materialpalette mit Steinsockel, hellen Putzflächen und bronzefarbenen Stehfalzdächern aus Titanzink auf. Die Dachformen greifen die Charakteristik der umgebenden Bebauung auf.

Das Projekt verfolgt ambitionierte Nachhaltigkeitsziele. Durch die Anwendung des Energiehaus-40-Standards wird die Zertifizierung nach DGNB Gold sowie QNG angestrebt.

….

Previous
Previous

Ladbroke Grove, RBKC

Next
Next

Victoria House, Bloomsbury