Uxbridge Road, Ealing

….

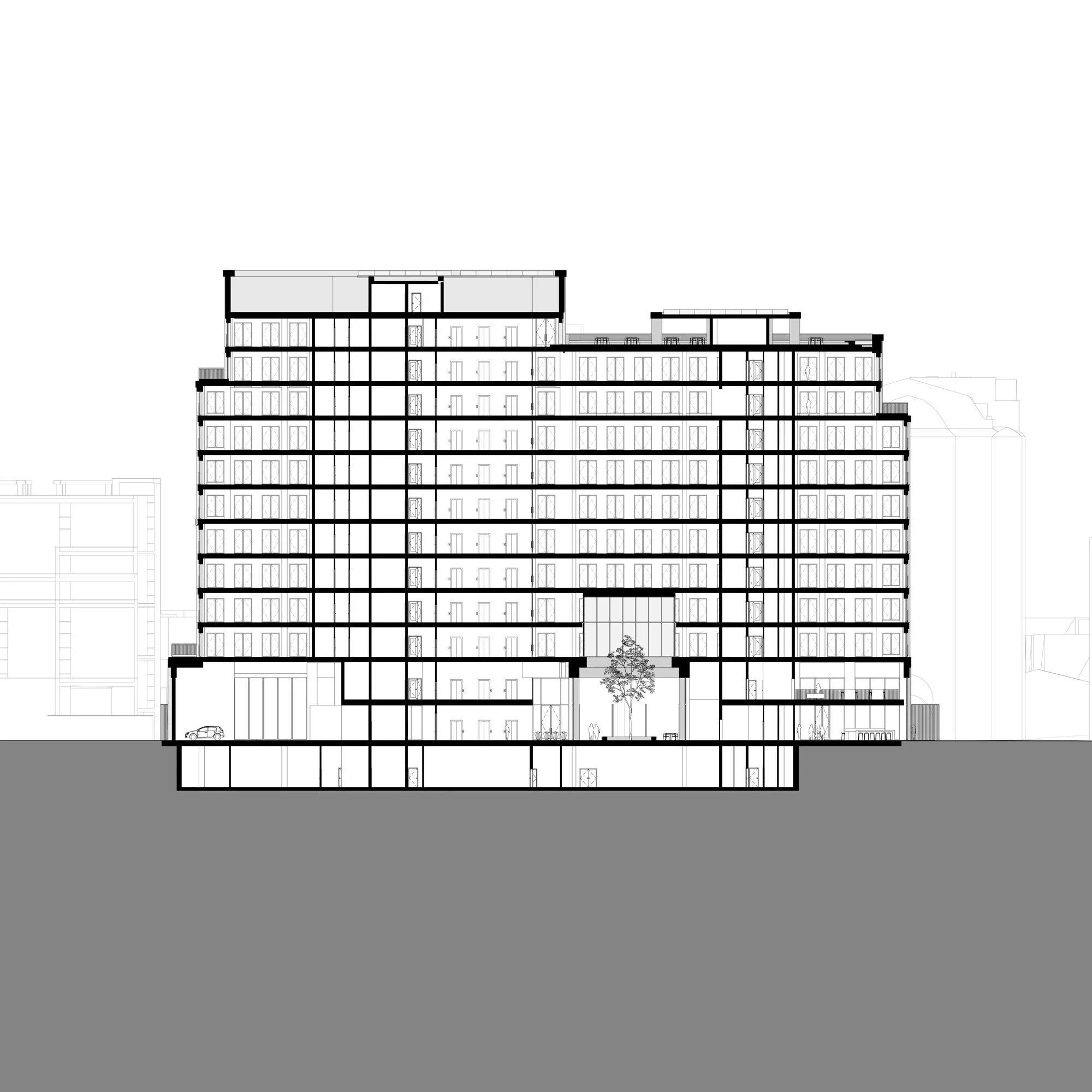
The project proposes a new workplace building located between the Uxbridge Road and Walpole Park and in close proximity to Ealing’s two new Crossrail stations. The proposals seek to replace the two existing buildings on the site that have reached the end of their natural life, as well as the extensive existing car park. The building accommodates 235,000 sq.ft of flexibly designed adaptable work space above a ground floor that will see publicly accessible spaces and significant enhancements to the public realm, including the creation of a new pedestrian journey with a passage through the buildings that offers the opportunity to connect the Uxbridge Road to Walpole Park.

Conceptually, the proposals are an abstract response to the found duality of both the contextual condition and the generators of the proposed: from the origins of suburbia where town meets country, to the vernacular typology of the semi-detached, to subtle referencing of the buildings of Soane & Dance that form Pitzhanger Manor, to the contrasting edge condition and aspect of the arterial road and historic park, through to the dual forms of the existing, the genesis of the proposed formation and lastly the two stages in which the buildings will come into use.

Composed as two conjoined forms, unequal in size but equal in proportion, each is formed of the same brick but with colour differentiated by the length of the firing process. Each has subtle differences in ordering and more noticeable differences in their crowning. Both enjoy external space in the form of in-board balconies and terraces for amenity and wellbeing, with a roof terrace to the lower building offering aspect over Walpole Park and to central London beyond.

For more details on the story, please follow this link:

bdonline.co.uk

..

Das Projekt sieht ein neues Bürogebäude zwischen der Uxbridge Road und dem Walpole Park in unmittelbarer Nähe der beiden neuen Crossrail-Stationen in Ealing vor. Vorgesehen ist der Ersatz der zwei bestehenden Gebäude auf dem Grundstück, die das Ende ihres Lebenszyklus erreicht haben, ebenso wie des großflächigen Bestandsparkplatzes. Das Gebäude umfasst rund 235.000 Quadratfuß flexibel und anpassungsfähig gestalteter Arbeitsflächen über einem Erdgeschoss, das öffentlich zugängliche Nutzungen sowie eine deutliche Aufwertung des öffentlichen Raums vorsieht. Dazu gehört die Schaffung einer neuen fußläufigen Verbindung in Form einer Passage durch das Gebäude, die die Uxbridge Road mit dem Walpole Park verknüpft.

Konzeptionell reagieren die Entwürfe in abstrakter Weise auf die festgestellte Dualität sowohl des städtebaulichen Kontexts als auch der prägenden Entwurfsparameter: von den Ursprüngen der Vorstadt, in denen Stadt und Landschaft aufeinandertreffen, über die volkstümliche Typologie der Doppelhaushälfte bis hin zu subtilen Bezügen auf die Gebäude von Soane & Dance, die das Pitzhanger Manor prägen. Weitere Referenzen ergeben sich aus dem Spannungsfeld zwischen der stark befahrenen Hauptverkehrsstraße und dem historischen Park, aus der Dualität der bestehenden Baukörper, der daraus entwickelten neuen Gebäudefigur sowie schließlich aus den zwei Phasen, in denen das Gebäude in Nutzung gehen wird.

Der Entwurf besteht aus zwei miteinander verbundenen Baukörpern, die sich in ihrer Größe unterscheiden, jedoch gleiche Proportionen aufweisen. Beide sind aus demselben Ziegelmaterial gefertigt, dessen Farbton durch unterschiedlich lange Brennprozesse variiert. Während sich die Baukörper in ihrer Gliederung nur subtil unterscheiden, zeigen sich deutlichere Differenzierungen in der Ausbildung ihrer oberen Abschlüsse. Beide Gebäude verfügen über Außenräume in Form von innenliegenden Balkonen und Terrassen, die der Aufenthaltsqualität und dem Wohlbefinden dienen. Eine Dachterrasse auf dem niedrigeren Baukörper eröffnet Ausblicke über den Walpole Park bis hin zur Londoner Innenstadt.

Weitere Informationen zum Projekt finden Sie unter folgendem Link:

bdonline.co.uk

….

Previous
Previous

Silk Park, Hendon

Next
Next

Whitechapel Square, London